お探しのエリアを選択して下さい。
国分ハウジング グループ
鹿児島・宮崎・大分・熊本の建売情報サイト
Property Detail物件詳細情報
【3月末までのご契約に限りカーポートプレゼント!】国分小・舞鶴中エリア■国分小、国分駅、幼稚園、スーパー、ドラッグストア、ハンズマンまで徒歩10分圏内
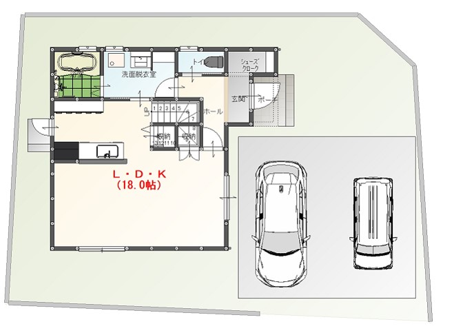
物件価格2,590万円
月々支払い例63,662円
頭金0円/ボーナス払い0円
※40年返済 ※3年固定金利0.85%
※地図上の「ピンマーク」の位置は「町名」もしくは「丁目」がある場合は「丁目」にマッピングされています。実際の場所ではございません。
※学校区は住所から自動判定したものであり、保証できる情報ではございません。正確な学校区はお問い合わせ下さい。
国分中央1丁目E 外観写真
【リビング】家族を見て「おかえり」と言える、自然と挨拶が生まれるリビング階段。※画像はイメージです。 家族とのコミュニケーションが広がり笑顔が絶えない空間です。
【リビング】 明るい光が差し込むリビングは、家族が集まる憩いの場所となります。※画像はイメージです。 温かい会話が弾む心地よい空間で、日々の暮らしを豊かに彩る特別な時間を過ごせます。
【キッチン】 ご家族との会話を楽しめる対面キッチンは、家事負担も軽減されます。※画像はイメージです。 毎日のお料理がもっと楽しくなり、家族との時間も増えるでしょう。
【キッチン】 キッチン収納は食器類や消耗品が保管できキッチン回りが片づきます。※画像はイメージです。 作業スペースも広く、スムーズな家事導線を確保できます。
【浴室】 浴槽で疲れを癒すことができ、小窓で自然乾燥もできる衛生的な浴室です。※画像はイメージです。 足を伸ばしてゆったり湯船に浸かれば、心身ともにリフレッシュできるバスタイムを過ごせます。
【洗面脱衣室】シャワー付きなので掃除も洗髪もでき、便利で快適な毎日になります。※画像はイメージです。 収納も充実しているので、タオルや洗剤などもすっきりと片付き、いつも清潔で快適な空間を保てます。
【トイレ】 温水洗浄便座付きのトイレ空間は、毎日の生活を気持ちよく過ごせます。※画像はイメージです。 嬉しいタオルリングやペーパーホルダーも完備です。
【和室】 落ち着く和室は来客用やお子様のお昼寝スペースとしてもご使用できます。※画像はイメージです。 畳が心地よく、心和む癒やしの空間です。
【洋室】 お子様の部屋としてだけでなく、家族の大切な空間としても使用できます。※画像はイメージです。 壁や床の色合いか温かみがあり、様々な使い方ができます。
【洋室】窓から差し込む明るい朝日で気持ちの良い朝を迎えることができる洋室です。※画像はイメージです。 シンプルで心地よく、木の温もりを感じるフローリングです。
【洋室】 お子様の成長や、生活環境の変化に合わせてご自由にレイアウト可能です。※画像はイメージです。 家族構成が変わっても柔軟に対応できる、長く快適に暮らせる設計です。
【収納】 充実の全居室収納スペース付きなので、お部屋が常にスッキリ片付きます。※画像はイメージです。 季節家電やレジャー用品なども収納できるため快適な暮らしをサポートします。
【WIC】 ウォークインクローゼット付なので、衣類や小物もたっぷり収納可能です。※画像はイメージです。 お部屋を広く使うことができ、日々の生活をより快適にサポートします。
【SIC】 シューズクロークは可動タイプの棚なので、高さに合わせて収納できます。※画像はイメージです。 お庭で使うものやベビーカーなどスッキリまとめられます。
【玄関】明るくシューズボックス付の玄関。タイルはお掃除しやすく清潔を保てます。※画像はイメージです。 調湿性に優れたエコカラットは玄関のアクセントにもなります。
駐車場 2台
【小学校】霧島市立国分小学校まで800m
【中学校】霧島市立舞鶴中学校まで1600m
【スーパー】コープかごしま 国分店まで690m
ご入力いただいた内容に不備があるようです。
※当フォームのご利用にあたっては、「個人情報保護方針」にご同意いただく必要があります。ご同意いただける場合は、上記の「同意する」にチェックをつけたうえでご利用ください。
※複数店舗・ブランドへご来場いただいた場合でも、ご来場プレゼントは1回限りの進呈とさせていただきます。 ※弊社主催の他イベントおよびキャンペーンの来場特典との併用は不可となります。
土地・建物/販売価格
2,590万円
返済例
月々63,662円
詳細を見る