お探しのエリアを選択して下さい。
国分ハウジング グループ
鹿児島・宮崎・大分・熊本の建売情報サイト
Property Detail物件詳細情報
内覧可能♪■高平台小まで650mと通学に安心!■高平台小・京陵中エリア■様々な使い方ができるフリースペース付☆主寝室は7.5帖と広めで使いやすい!
物件価格2,588万円
月々支払い例63,613円
頭金0円/ボーナス払い0円
※40年返済 ※3年固定金利0.85%
※地図上の「ピンマーク」の位置は「町名」もしくは「丁目」がある場合は「丁目」にマッピングされています。実際の場所ではございません。
※学校区は住所から自動判定したものであり、保証できる情報ではございません。正確な学校区はお問い合わせ下さい。
区画図
くつろぎを愉しむリビングルームは憩いの場となります。ライフスタイルに新しいゆとりをもたらします。
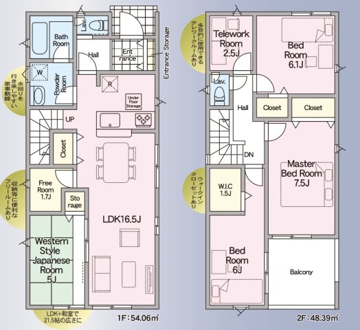
16.5帖のリビングはとても開放的で家族だんらんの場に最適です。
お子様や家族と距離感近く料理が可能な対面式のシステムキッチンです。
作業スペースも広く、床下収納もあり使いやすい空間です。
浴室暖房乾燥機付きの浴室です。小窓付きで自然換気もでき衛生的です。
使いやすく三面鏡を採用し、明るく仕上げました。毎日の気持ちも体もリフレッシュできます。
トイレは1・2階にあるので朝の混雑も解消。温水洗浄便座付きで年中快適にご使用いただけます。
リビング横の和室はお子様の遊びの空間としても、お昼寝空間としても活躍。
書斎や趣味部屋、お子様お部屋として、ライフスタイルに合わせ、様々な用途で使えるお部屋です。
窓からの明るい光が差し込んで、気持ちの良い朝が迎えられます。
子ども室に好適なお部屋。2方向の窓で、こもりがちな空気の入れ替えもバッチリ。
全居室収納あり。お部屋をスッキリ片付けられます。
書斎や納戸など色々な使い方が可能な空間です。
すっきりとした玄関。玄関収納付きで、生活感を出さずに収納可能です。
前面道路含む現地写真
ご入力いただいた内容に不備があるようです。
※当フォームのご利用にあたっては、「個人情報保護方針」にご同意いただく必要があります。ご同意いただける場合は、上記の「同意する」にチェックをつけたうえでご利用ください。
※複数店舗・ブランドへご来場いただいた場合でも、ご来場プレゼントは1回限りの進呈とさせていただきます。 ※弊社主催の他イベントおよびキャンペーンの来場特典との併用は不可となります。
土地・建物/販売価格
2,598万円
返済例
月々63,858円
詳細を見る
この物件をご覧いただくには会員登録が必要です。
ログインはこちら