国分ハウジング グループ
鹿児島・宮崎・大分・熊本
の建売情報サイト
| 開催日程 | 2026年2月14日(土)~3月31日(火) |
|---|

| 霧島市 7棟 現地即売会! |
\霧島市エリアにて、家事ラク間取りの7棟販売中/
霧島市エリアにて、7棟の家事ラク物件販売中!
【今だけ期間限定!】100万円相当のカーポートプレゼント!!
\イベント開催中の物件を少しだけご紹介いたします/

※画像はイメージ、または完成予想図です。
【3月末までのご契約に限りカーポートプレゼント!】
国分北小・国分中エリア■国分北小、コスモス、コンビニ、保育園、ドラッグイレブンまで徒歩10分圏内
| 物件価格 | 2,350万円 (月々支払い例:57,763円 ※頭金0円/ボーナス払い0円) |
|---|---|
| 所在地 | 鹿児島県霧島市国分新町925 [ 地図を見る ] |
| 交通 | JR日豊本線 徒歩 約32分 (約2567m) |
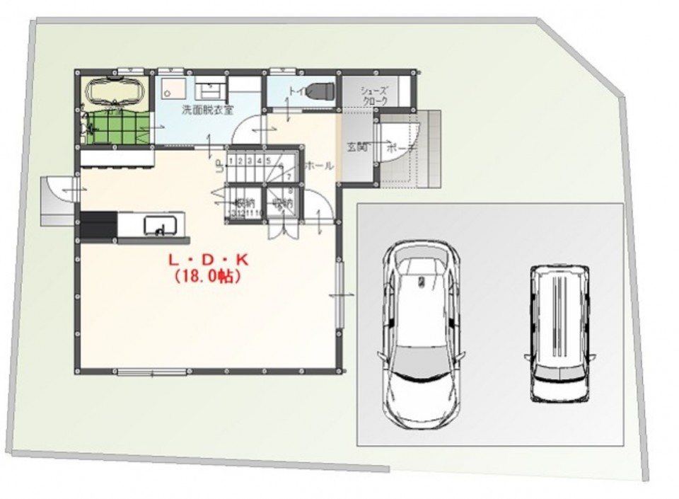
| 間取り | 5LDK |
| 土地面積 | 174.02㎡ (52.64坪) |
| 建物面積 | 107.64㎡ |
| 築年月 | 2025年03月 |
| 構造 | 木造 |
| 学校区 | 国分北小学校 / 国分中学校 |
| 設備 | 温水洗浄便座、追焚機能、浴室乾燥機、システムキッチン、カウンターキッチン、IHクッキングヒーター、食器洗浄乾燥機、ウォークインクローゼット、室内洗濯機置場、照明器具、エアコン、モニタ付インターホン、太陽光発電 |
| 取引態様 | 専属専任媒介 |

※画像はイメージ、または完成予想図です。
【3月末までのご契約に限りカーポートプレゼント!】
国分小・舞鶴中エリア■国分小、国分駅、幼稚園、スーパー、ドラッグストア、ハンズマンまで徒歩10分圏内
| 物件価格 | 2,590万円 (月々支払い例:63,662円 ※頭金0円/ボーナス払い0円) |
|---|---|
| 所在地 | 鹿児島県霧島市国分中央一丁目9 [ 地図を見る ] |
| 交通 | JR日豊本線 国分駅 徒歩 約8分 (約640m) |
| 間取り | 4LDK |
| 土地面積 | 160.36㎡ (48.5坪) |
| 建物面積 | 97.7㎡ |
| 築年月 | 2025年11月 |
| 構造 | 木造 |
| 学校区 | 国分小学校 / 舞鶴中学校 |
| 設備 | 温水洗浄便座、追焚機能、浴室乾燥機、システムキッチン、カウンターキッチン、IHクッキングヒーター、食器洗浄乾燥機、ウォークインクローゼット、室内洗濯機置場、照明器具、エアコン、モニタ付インターホン、太陽光発電 |
| 取引態様 | 専属専任媒介 |

※画像はイメージ、または完成予想図です。
【3月末までのご契約に限りカーポートプレゼント!】
青葉小・国分中エリア■青葉小、医院、コンビニ、郵便局まで徒歩15分圏内
| 物件価格 | 2,390万円 (月々支払い例:58,746円 ※頭金0円/ボーナス払い0円) |
|---|---|
| 所在地 | 鹿児島県霧島市国分重久1118-2 [ 地図を見る ] |
| 交通 | JR日豊本線 国分駅 / 止上バス停 徒歩約1分 |
| 間取り | 5LDK |
| 土地面積 | 183.06㎡ (55.37坪) |
| 建物面積 | 110.95㎡ |
| 築年月 | 2025年07月 |
| 構造 | 木造 |
| 学校区 | 青葉小学校 / 国分中学校 |
| 設備 | IHクッキングヒーター、システムキッチン、追焚機能、エアコン、ウォークインクローゼット、室内洗濯機置場、モニタ付インターホン、温水洗浄便座、カウンターキッチン、浴室乾燥機、食器洗浄乾燥機、照明器具、太陽光発電 |
| 取引態様 | 専属専任媒介 |
このほかにも、同地区の他物件もございます。
詳細はお気軽にお問合せください。