国分ハウジング グループ
鹿児島・宮崎・大分・熊本
の建売情報サイト
| 開催日程 | 2026年2月14日(土)~3月31日(火) |
|---|

| 【北諸県郡 三股町】2棟限定即売会! |
\北諸県郡 三股町 家事ラク間取りの建売物件2棟限定で販売中!/
北諸県郡 三股町エリアにて、建売物件2棟を販売中!!
【今だけ期間限定!】100万円相当のカーポートプレゼント!!(※施工費含む)
※3/31までの期間限定キャンペーンとなっていますので、お問い合わせはお早めに!

\イベント開催中の物件をご紹介いたします/
↓↓
| 価格 | 2,590万円 |
|---|---|
| 種目 | 新築一戸建住宅 |
| 所在地 | 宮崎県北諸県郡三股町大字樺山1877-40 |
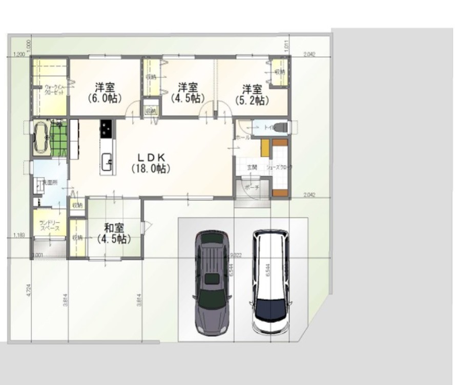
| 建物面積 | 92.74㎡ |
| 土地面積 | 256.89㎡ |
【3月末までのご契約に限りカーポートプレゼント!】三股西小・三股中エリア■郵便局、都城東高校、コンビニ、保育園、公園まで徒歩10分圏内



| 価格 | 2,590万円 |
|---|---|
| 種目 | 新築一戸建住宅 |
| 所在地 | 宮崎県北諸県郡三股町大字樺山1877-22 |
| 建物面積 | 92.74㎡ |
| 土地面積 | 219.61㎡ |
【3月末までのご契約に限りカーポートプレゼント!】三股西小・三股中エリア■郵便局、都城東高校、公園、セブンイレブン、歯科まで徒歩10分圏内



| 開催期間 |
2026年2月14日(土)~3月31日(火)
※火・水曜日は定休日です。
※開催時間 10:00~17:00
| 問い合わせ先 国分ハウジング不動産 |